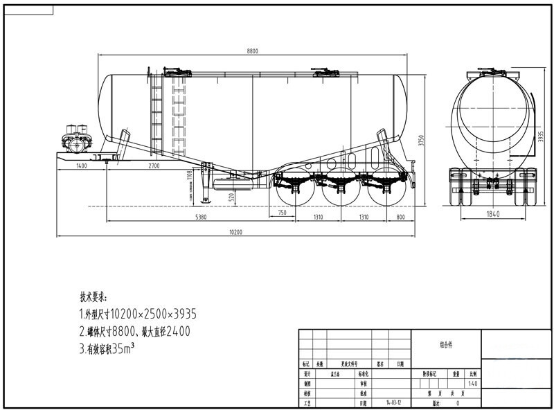
مقطورة صومعة الأسمنت الجاف السائب الهوائية من علامة zw trailer مصممة لخدمات لوجستيات المساحيق السائبة حيث تكون الموثوقية والتفريغ السريع والتحكم في الغبار ضرورية. مصنوعة في شاندونغ، الصين، تدعم هذه المقطورة سعات تتراوح من 30 إلى 65 م³ ومُحسّنة لنقل الرماد المتطاير والأسمنت السائب ومسحوق الجير ومسحوق الخام. بتصميم خزان متكامل حديث ونظام تفريغ هوائي مثبت، توفر المقطورة كفاءة عالية لموردي مواد البناء ومصانع الأسمنت ومشغلي النقل السائب.
خزان اصطناعي متكامل بتصميم ثلاثي الأبعاد لتحقيق قوة عاملة عالية، وصلابة جيدة وأداء تحمل ضغط موثوق.
نظام داخلي من نوع الوسادة الهوائية يزيد من سعة التحميل، ويُمكن من التفريغ السريع ويقلل من المواد المتبقية.
تخطيط طاقة ذاتي الاكتفاء: المحرك يقود ضاغط الهواء المثبت على المقطورة عبر نظام أخذ القدرة (PTO) لتشغيل هوائي مستقل.
حجرة هواء سفلية محكمة تُشكل سريرًا مائعًا بحيث يُمكن نقل المسحوق عبر خط أنابيب التفريغ مدفوعًا بالضغط.
هيكل خاص بالخزان لتعزيز الاستقرار والمتانة في ظروف الخدمة الشاقة.
مصمم لتفريغ منخفض الغبار مع نظام تفريغ بصمام فراشة للتحكم في التدفق وحماية البيئة.
تعمل مقطورة السائب الجاف الهوائية من خلال تسلسل مضغوط وموثوق: محرك مخصص يُشغل ضاغط الهواء المثبت على المقطورة عبر PTO. يتم توجيه الهواء المضغوط إلى حجرة الهواء السفلية للخزان المحكم، مما يُشكل سريرًا مائعًا يُعلق المادة المسحوقة ويحولها إلى حالة قابلة للتدفق. عندما يصل ضغط الخزان إلى النقطة المحددة، يُفتح المشغل صمام التفريغ الفراشة ويتم نقل الأسمنت المائع أو الرماد المتطاير عبر الأنابيب إلى صومعة الاستقبال أو القادوس. يضمن هذا التفريغ الهوائي المنضبط تفريغًا سريعًا ويُقلل من التعامل اليدوي والتسرب.
إنتاجية عالية: التسييل بمساعدة الهواء يُمكن من معدلات تفريغ سريعة مقارنةً بأنظمة الجاذبية فقط.
متبقيات قليلة: هيكل الوسادة الهوائية والهندسة الداخلية يُقللان من التصاق المواد والهدر، مما يُحسن كفاءة الحمولة.
استقلالية تشغيلية: ترتيب ضاغط متكامل و PTO يُمكن من التفريغ دون الحاجة إلى هواء خارجي، مما يدعم مواقع التسليم النائية أو المتنقلة.
متانة: الخزان الاصطناعي المتكامل والهيكل الخاص بالخزان مصممان لفترات خدمة طويلة في ظروف الطرق التجارية الشاقة.
تعامل أنظف: النقل الهوائي المحكم يُحد من انبعاثات الغبار، مما يُحسن سلامة الموقع والامتثال للضوابط البيئية.
مصنوعة في شاندونغ، الصين (البر الرئيسي) بواسطة zw trailer، عادةً ما تُشحن مقطورة الأسمنت الجاف خلال 20-30 يومًا. بسعة توريد تبلغ 300 وحدة شهريًا، يدعم مقياس الإنتاج توسع الأسطول والطلبات المتكررة. يتم تنسيق جداول التسليم والدعم اللوجستي مع العملاء لتتناسب مع جداول المشاريع وتخطيط الطرق.
المقطورة مصممة للفحص والصيانة المباشرة. تركز الصيانة الروتينية على الضاغط، وصلة PTO، أنظمة الإحكام ومجموعة صمام الفراشة. يقلل تصميم الخزان المتكامل من عدد التركيبات الخارجية، مما يُبسط التنظيف ويُقلل من نقاط التسرب. يتم توفير فترات الخدمة الموصى بها ودعم قطع الغيار للمشترين لضمان وقت تشغيل متوقع في العمليات التجارية.
بالنسبة للشركات التي تُقدّر التعامل الفعال مع المساحيق السائبة، تجمع مقطورة صومعة الأسمنت السائب الجاف الهوائية بين خزان هيكلي متقدم، تقنية هوائية موثوقة وميزات عملية للاستخدام الميداني. يوازنها بين أداء التفريغ العالي، المتبقيات القليلة وقوة الضاغط المتكامل مما يجعلها خيارًا ممتازًا للوجستيات الحديثة للمواد حيث تكون السرعة والنظافة والمتانة مهمة.
للمناقشة حول التكوينات، التسليم أو تكامل الأسطول، اتصل بفريق الإنتاج لمراجعة الخيارات التي تتوافق مع احتياجاتك التشغيلية ومتطلبات الموقع المحلي.
مصنعنا
البضائع السائبة، دون تفكيك أي مكونات، يتم شحنها ككل. الميزة: السعر معتدل، الشحن كامل، ولكن المنتج عرضة للتآكل بمياه البحر.
النقل بالحاويات رخيص ويمكنه حماية الآلات بشكل فعال أثناء النقل. ولكن يجب تفكيك الآلة، وتحتاج إلى تجميعها بنفسك بعد استلام البضائع.
نقل حاوية الإطار مشابه للنقل بالحاويات، ولكن حاويات الإطار يمكنها نقل آلات فائقة الارتفاع.
النقل بالدحرجة. المنتج في عنبر الشحن ولديه حماية قوية، ولكن السعر غالي.
رسالة عبر الإنترنت
* من أجل الرد عليك بسرعة ودقة، يرجى التأكد من أن معلومات الاتصال الخاصة بك دقيقة. بالنسبة لمكالمات الهاتف/واتساب، يرجى تضمين رمز الدولة. شكرًا جزيلًا!
جميع الفئات
طلب عرض سعر؟

* من أجل الرد عليك بسرعة ودقة، يرجى التأكد من أن معلومات الاتصال الخاصة بك دقيقة. بالنسبة لـالمكالمات الهاتفية/واتساب، يرجى تضمين رمز الدولة. شكرًا جزيلًا!
